鋼構制作安裝
鋼構制作安裝涵蓋多個關鍵環節,在制作方面,需依據設計要求精準選材,對鋼材進行切割、焊接等加工,確保構件尺寸精度與質量,嚴格把控焊接工藝以保障結構強度,安裝過程則要提前規劃,做好基礎準備,通過合理的吊裝方案將鋼構準確就位,注重各部件連接的穩固性,從前期的材料檢驗到制作中的質量管控,再到安裝時的安全防護與精細操作,每一步都至關重要,還需遵循相關標準規范,保障鋼構整體的穩定性與耐久性,使其能安全有效地應用于各類建筑、橋梁等工程建設中,鋼構制作安裝
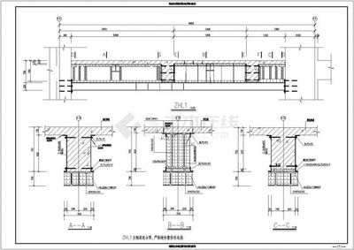
鋼結構制作與安裝是一項高度系統化的工程,涵蓋深化設計、精密加工、物流運輸、高空吊裝及質量驗收五大核心環節,在制作階段,我們采用數字化放樣技術,嚴格執行材料切割、組對焊接、噴砂除銹及多層防腐工藝,確保構件尺寸誤差控制在±2mm以內;安裝過程中依托BIM施工模擬,靈活選用塔式起重機或全地面起重機等設備,遵循"主體先行、分區作業"的施工原則,重點把控結構垂直度(≤H/1000且≤25mm)、高強螺栓扭矩值(±10%偏差)及焊縫探傷等級(Ⅱ級及以上)。

全產業鏈服務體系
作為裝配式建筑的核心載體,鋼結構憑借其抗震性能優(可抵抗8級地震)、空間利用率高(柱距可達36m)、回收率超90%等特性,已成為數據中心、物流倉儲、異形地標建筑的首選結構形式,我們提供EPC總承包服務,實現從概念設計到運維管理的全生命周期管控。
智能深化設計
基于Tekla Structures的碰撞檢測系統
風荷載/地震作用下的有限元分析
復雜節點三維可視化交底
數字化預制加工
激光切割機實現±0.5mm加工精度
機器人焊接合格率99.2%
熱浸鍍鋅防腐層≥85μm
智慧化安裝施工
北斗定位系統輔助吊裝
電動扭矩扳手智能校準
應力監測云平臺實時預警
核心資質
? 中建金協AAA信用企業
? 國家高新技術企業
? 累計完成300萬㎡鋼結構工程
[圖示:無人機正在進行鋼結構全景掃描驗收]
(圖片說明:項目團隊采用AR技術輔助校正鋼梁安裝軸線)
六大價值承諾
? 40天標準化極速建造
? 德國DIN18800標準工藝
? 10年主體結構質保
? 每噸鋼構減排1.2噸CO?
? 專利連接技術節省20%用鋼量
? 提供BIM運維模型
文章版權聲明:本站文章基本來源于網絡,如有不妥請聯系店長刪除

發表評論
還沒有評論,來說兩句吧...